Технический проект и дизайн-проект – это набор документов, который включает в себя информацию о том, как сделать ремонт, чтобы получилось именно так, как было задумано владельцем квартиры или дизайнером, без ошибок и переделок.
Проект включает в себя несколько планов и списков товаров. Планы могут быть нарисованы от руки, либо в специальных программах.
Технический проект включает только комплект чертежей и планов, которые полностью отражают идеи, размеры, высоты и технические решения. В нем указана информация о реализации задуманных решений таким образом, чтобы все элементы сочетались между собой, не противоречили друг другу, были технически выполнимыми и удобными в эксплуатации.
Дизайн-проект, помимо всех технических чертежей, содержит стилистические и цветовые решения, подбор мебели и декора, а также подробные развертки стен и визуализации (фотореалистичные изображения).
Самое важное в ремонте — учесть все жизненные сценарии, разработать грамотное планировочное решение и уже на его основе формировать остальные разделы проекта. Поэтому технический проект является одним из главных документов будущего ремонта.
Из чего состоит технический проект:
Списки товаров включают в себя все необходимые материалы, инструменты и другие расходники, для разных этапов ремонта и помещений.
Списки покупок удобнее вести прямо на сайте или в приложении интенет-магазинов. Подробнее о каждом из планов расскажем ниже.
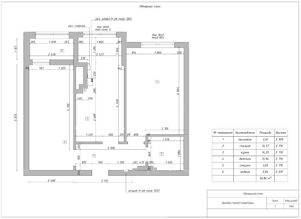
Обмерный план — это основа любого проекта. Он схематично отображает размеры каждого помещения с учетом существующей планировки. На плане указываются площадь помещений, длины стен, размеры отступов, высота потолков, а также размеры оконных и дверных проемов и высота подоконников.
Для снятия замеров можно использовать простую рулетку, но лучше использовать лазерный дальномер. С его помощью вы получите наиболее точные значения, а также, некоторые модели дальномеров имеют функцию автоматического расчета площади помещений и дистанционной передачи замеров через «блютуз».
Благодаря обмерному плану можно будет понять, какие размеры мебели и техники подойдут для помещения и где их будет возможно разместить.
Рекомендуется выполнить фактический план электрики, на котором будут отражены существующие розетки, выключатели, выводы проводов, датчики, электрощит и его размеры.
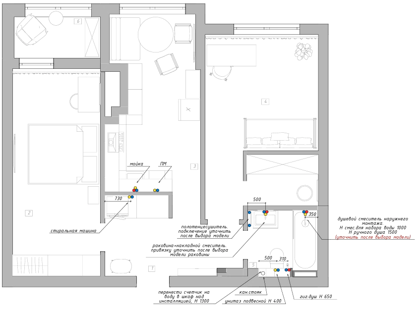
Также желательно выполнить фактический план сантехники с указанием выводов ГВС, ХВС, канализации, стояков воды, радиаторов, гребенки отопления или теплого пола. Эти замеры необходимы для создания более точного дизайн-проекта ванной комнаты и кухни.
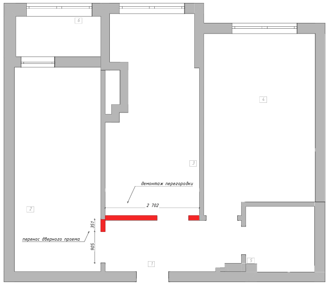
Этот план отражает изменения планировки: расширение пространства, снос или перенос стен, формирование новой геометрии помещений, перенос дверных проемов.
Следует учитывать, что не все стены можно демонтировать как по техническим причинам (несущие конструкции, монолит), так и по юридическим. В ряде случаев потребуется официальное согласование перепланировки.
Капитальное зонирование предполагает возведение стен для создания ниш под встроенные шкафы и кухню, а также строительство отдельных гардеробных или прачечных.
План демонтажных работ показывает, какие элементы текущей планировки требуют сноса.
План монтажных работ показывает, в каких местах будут возведены новые элементы (перегородки, ниши).
На вторичном рынке недвижимости часто требуется демонтаж стены между ванной комнатой и туалетом, а также перенос дверного проема. Кроме того, на план монтажа наносятся гипсокартонные короба в санузлах, зашивка стояков, инсталляции, фальш-стены и декоративные конструкции.
Планировочное решение отвечает за эргономику пространства. Оно помогает определить функциональные зоны, расположение мебели и ее оптимальные размеры.
На этом этапе важно продумать сценарии жизни в квартире или доме: определить назначение комнат, понять, кто и как будет ими пользоваться.
Следует заранее определить желаемую мебель, ее размеры и формы. Важно учитывать не только назначение помещений, но и образ жизни жильцов, их увлечения и привычки.
Например, может потребоваться место для хранения музыкальных инструментов, велосипедов, швейной машины и других крупногабаритных предметов.
Не стоит забывать и о домашних животных — желательно заранее продумать место для лежанки или туалета.
Не забывайте о домашних животных. Продумайте место размещения лежанки или туалета для них.
Важно учитывать проходные зоны и избегать неиспользуемого пространства. На этом этапе также необходимо продумать направление открывания всех дверей.
Немаловажную роль играет и образ жизни семьи: как часто приходят гости, где обычно проходит совместный отдых и общение.
Проект кухни составляется отдельно от общего дизайн-проекта. Создать его вы сможете в дизайн-центре, в любом из наших магазинов. Для проектирования понадобится обмерный план квартиры. На основании расположения кухонной мойки и техники вы сможете скорректировать план сантехнического оборудования и электрики.
Решите, какой техникой вы пользуетесь сейчас, либо планируете пользовать в новой квартире. Определитесь с типом варочной поверхности (газ, электричество, индукция) и на какое количество конфорок она будет. Продумайте размер посудомоечной машины. Чем больше членов семьи, тем более вместительной она должна быть.
Заранее подумайте о том, какую кухонную мойку вы хотите по форме и из какого материала.
Должно ли на мойке быть крыло для сушки посуды или нет. Сколько конфорок на варочной поверхности вам нужно и какой она должна быть, газовой или электрической.
Не забывайте о крупногабаритной бытовой технике, для которой понадобится место на столешнице (кофемашина, аэрогриль, чайник и т.д.).
После составления дизайн-проекта кухни можно приступать к составлению плана сантехники и электрики.
Дизайн-проект ванной комнаты составляется аналогичным образом, что и проект кухни. Кроме раскладки плитки, вам предстоит решить, какая сантехника будет использоваться, напольная или подвесная (с применением инсталяций). Вам нужна ванна или душ, какие смесители вы хотите видеть в своей ванной, стандартные или скрытого монтажа(встроенные).
Продумайте места хранения, место установки стиральной/сушильной машины. Какой полотенцесушитель вы бы хотели использовать (водяной или электрический). Заранее определитесь с выбором зеркала, будет ли оно с подсветкой и функцией антизапотевания. От этого будет зависеть наличие выводов электрики в зоне монтажа.
План сантехники отражает расположение выводов воды и канализации, их высоты и привязки к стенам.
Размеры определяются исходя из планировочного решения ванной комнаты и выбранной сантехники (например, скрытых или наружных смесителей).
Для более точного размещения инженерных решений рекомендуется заранее выбрать плитку и выполнить ее раскладку у специалистов магазина. Это особенно важно при проектировании ревизионных люков, которые желательно совмещать со швами плитки.
План размещения осветительного оборудования, выключателей и розеток - это 3 отдельных плана, на которых должны быть обозначены все места вывода проводки для подключения осветительных приборов, а также тип светильников (светодиодные ленты, точечные, бра и т.д.).
На других планах должны быть указаны места расстановки выключателей с указанием их типа (одноклавишные, двухклавишные, проходные, перекрестные), высотой установки и отступом от одной из соседних стен.
Аналогичным образом составляется план расстановки розеток. На нем указывается количество розеток в размке, высота установки и отступы от ближайших стен.
Для комфортного использования кухни может потреьоваться от 15 розеток и более. Подробнее о том, сколько розеток понадобится для кухни - рассказывали в отдельном материале.
Потратив некоторое время на снятие замеров и составление нескольких дизайн-проектов с планами квартиры, вы сможете сделать ремонт с минимальным количеством корректировок в процессе работ и получить желаемый результат, о котором мечтали перед началом ремонта.
Наличие проекта упростит вашу коммуникацию с бригадиром и мастерами, а списки покупок помогут контролировать смету и упростят процесс закупки материалов.
Пользуйтесь полученной информацией и делайте ремонт с удовольствием.
Для самостоятельного проектирования откройте сайт на ПК
Для самостоятельного проектирования откройте сайт на ПК